Overview
- Updated On:
- March 31, 2026
- 5
- Bedrooms
- 3
- Bathrooms
Description
A spacious three-storey family home offering flexible accommodation, including multiple reception rooms and up to five bedrooms, in the sought-after location of School Row in Castlefields, Prudhoe.
Features
- Three-Storey Family Home
- Five Bedrooms
- Multiple Reception Rooms
- Versatile Accommodation
- Modern Throughout
- Sought-After Location
- Off-Street Parking & Garage
- EPC: Band C
- Council Tax: Band D
- Tenure: Freehold
Property Description
A well-presented and spacious three-storey family home offering flexible accommodation, including multiple reception rooms and up to five bedrooms, in the sought-after location of School Row in Castlefields, Prudhoe.
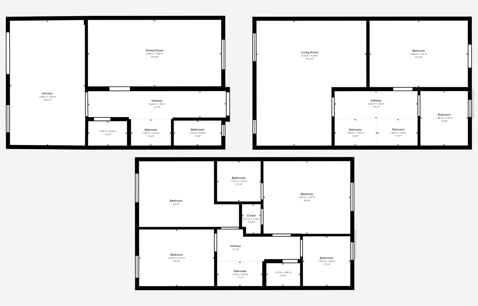
The ground floor features the entrance hall which provides access to the dining room, a generous kitchen/breakfast room, and the downstairs cloak room. The first floor comprises a large living room along with two additional versatile rooms ideal as bedrooms, a study, or further reception space. The top floor forms an attractive bedroom level with a master bedroom and ensuite, two further bedrooms, and a modern family bathroom. The property enjoys a private rear garden with lawn and patio, along with a single car garage with power.
The home is situated well for Prudhoe’s local amenities, including shops, cafés, schools, leisure facilities and transport links, with easy access to the A695 for commuting towards Hexham or Newcastle.
Viewings are highly recommended to appreciate the space, layout, and versatility this property has to offer.
Entrance Hall
A bright and welcoming entrance hall offering a modern feel with light décor, quality flooring, and a carpeted staircase rising to the upper levels. There is a practical understairs storage cupboard, a central heating radiator, and access to the principal ground floor rooms – including the downstairs cloakroom.
Downstairs WC
1.87m x 0.98m (6’1″ x 3’2″)
A practical and well-presented downstairs cloakroom featuring a modern white WC and pedestal wash hand basin with chrome fittings and splashback tiling, as well as a central heating radiator and double glazed privacy window.
Dining Room
5.26m x 2.62m (17’3″ x 8’7″)
A well-proportioned dining room, or versatile reception area for everyday family use, featuring a large front aspect double glazed window, a central heating radiator, and light wood-effect flooring.
Kitchen/Breakfast Room
2.96m x 4.93m (9’8″ x 16’2″)
A spacious kitchen and breakfast room arranged in a practical U-shaped layout with a range of wall and floor units, wood-effect worktop surfaces, and tile-effect flooring. The room includes an integrated electric oven with extractor hood above, integrated dishwasher, a stainless steel sink beneath the double glazed rear window, and space for freestanding appliances. Glazed patio doors open directly to the garden, providing natural light over the breakfast area, which comfortably accommodates a dining table.
Landing
A central landing area with staircase rising from the ground floor and continuing to the second floor. The space, which features a central heating radiator and carpet flooring, provides access to the first floor living room and two bedrooms.
Living Room
4.34m x 4.93m (14’2″ x 16’2″)
A generous first floor living room offering a bright and comfortable reception space suitable for a range of furniture layouts. The room features two double glazed windows, allowing good natural light, and is finished with carpet flooring.
Bedroom Five / Reception Room
3.88m x 2.62m (12’8″ x 8’7″)
A versatile first floor room featuring French doors opening onto a Juliet balcony. The room has carpet flooring, a central heating radiator, and is suitable for use as a fifth bedroom or as an additional reception room.
Bedroom Four / Study
1.88m x 2.15m (6’2″ x 7’0″)
A practical room currently arranged as a study, featuring a front aspect double glazed window and carpet flooring. The room has space for a desk and office furniture but its layout also makes it suitable for use as a nursery or single bedroom if preferred.
Landing
The second floor landing provides access to the upper bedrooms and bathroom, with a fitted carpet, a central heating radiator, and airing cupboard.
Bedroom One
3.43m x 2.87m (11’3″ x 9’4″)
The principal bedroom, with ample space for a double+ bed, features a front aspect double glazed window, carpet flooring, built-in wardrobes, and has direct access to the ensuite shower room.
Ensuite
1.72m x 1.59m (5’7″ x 5’2″)
A modern ensuite shower room fitted with a corner shower unit, a white WC, and a wash basin set within a vanity unity. The room includes a chrome heated towel rail and is finished with wood-effect flooring.
Bedroom Two
3.24m x 2.68m (10’7″ x 8’9″)
A well-presented bedroom featuring a double glazed window with rear aspect, a central heating radiator, and carpet flooring. The room offers space for freestanding bedroom furniture and the layout comfortably accommodates a double bed.
Bedroom Three
2.96m x 2.24m (9’8″ x 7’4″)
Currently setup as a dressing room, the third bedroom on the second floor can also comfortably accommodate a double bed and offers ample space for freestanding wardrobes. The room is finished with a double glazed window, central heating radiator, and carpet flooring.
Bathroom
1.87m x 1.96m (6’1″ x 6’5″)
A modern family bathroom fitted with a white three-piece suite comprising a panelled bathtub with glass shower screen and overhead shower, a WC, and a wash basin set within a vanity unit providing useful storage. The room features a double glazed privacy window, a heated towel rail, and wood-effect flooring.
External
The external comprises a private rear garden, a single garage positioned to the side of the property, and off-street parking to the front. The garden features a lawned area with a paved patio and is enclosed by fencing. The single car garage has an up-and-over door, providing secure storage or parking, as well as power for workspace potential.
Services
We have been advised the property has mains electricity, mains water, gas central heating, and mains drainage.
Material Information
Prospective buyers should review the following details before making any purchase decisions. Broadband speed for the area can be determined by entering the postcode into the Broadband Speed Checker (“UK’s No. 1 Broadband Speed Test”). Mobile network coverage can be verified through the Ofcom website. These particulars are intended to offer a fair representation of the property; however, accuracy cannot be guaranteed, and they do not constitute a contractual offer. Buyers should conduct their own inspection of the property. None of the listed appliances or services have been tested by us, and we advise purchasers to seek a qualified professional to assess them before making any legal commitments.
Referral Fees
In line with the Estate Agents’ (Provision of Information) Regulations 1991 and the Consumer Protection from Unfair Trading Regulations 2008, we are required to disclose that this company may provide certain services to buyers and sellers, from which we may earn a referral fee upon completion. These services include conveyancing where we typically receive an average fee of £240.00 (incl VAT) and mortgages where we generally earn a commission averaging £120.00 (incl VAT).
About Us
Mace Estates is your local, independent, award-winning estate and letting agent covering the full Tyne Valley including Hexham, Northumberland, Cumbria, and Tyne and Wear. We offer free, no-obligation sales valuations and rental valuations, along with expert advice on selling, buying, letting and property management. Whether you’re a homeowner looking to sell, a landlord seeking reliable tenants, or an investor exploring buy-to-let opportunities, our friendly team provides accurate valuations, 24/7 support and genuine local market knowledge. From family homes, flats, bungalows and rural cottages to park homes, commercial units and investment properties, we’re here to help you achieve the best results across Hexham and the wider region.



