Overview
- Updated On:
- March 7, 2026
- 2
- Bedrooms
- 1
- Bathrooms
Description
A two bedroom terraced home on Davison Street with generous living spaces, off-street parking, and modern touches throughout.
Property Description
We are delighted to present our two bedroom terraced home on Davison Street, a well-presented property offering generous living space, modern touches and a practical layout ideal for first-time buyers, downsizers or investors.
The ground floor features the entrance hall, a spacious living room with dining alcove, and a well-equipped kitchen with direct access to the rear garden. Upstairs, two comfortable bedrooms and a recently fitted bathroom. Externally, the home benefits from a low-maintenance gravelled garden, facing south-west, with off-street parking via a garage door, along with additional on-street parking to the front.
Situated in a popular residential area of Newburn, the property offers convenient access to local amenities, transport links and riverside walks.
Viewings come highly recommended.
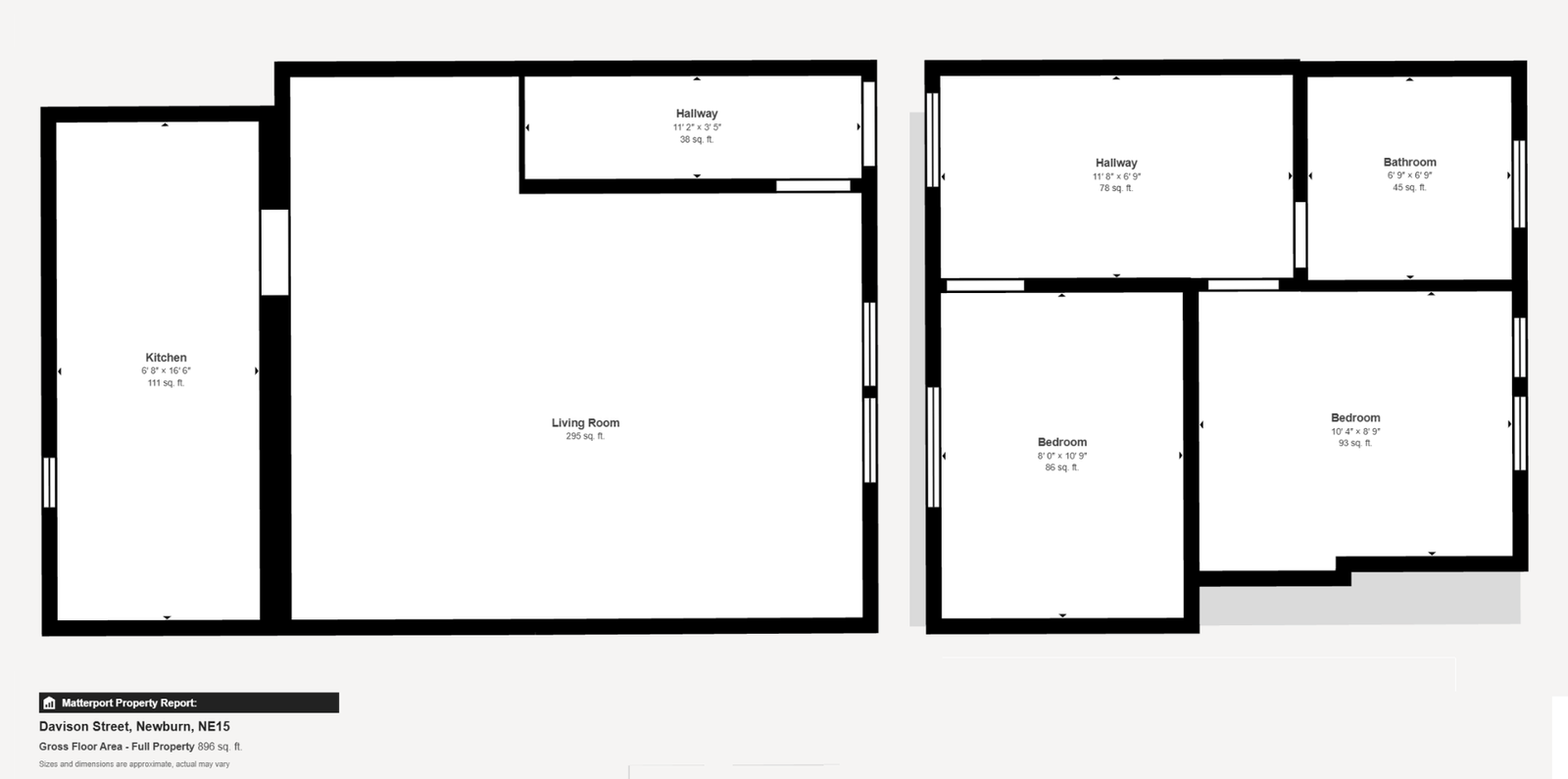
Entrance Hall
Step through a uPVC front door with privacy glazing into a welcoming entrance hall, finished with attractive wood flooring. A carpeted staircase rises to the first floor, while the hall provides direct access to the living room.
Living Room
5.48m x 5.76m (17’11” x 18’10”)
A generous living space centred around an open fireplace recess with a marble hearth and wooden surround, offering an ideal focal point for the room. There are two double glazed windows with front aspect, complemented by wood flooring and two double central heating radiators. The room also features an understairs storage cupboard and a natural alcove perfectly suited for a dining table. From here, there is direct access through to the kitchen.
Kitchen
2.04m x 5.03m (6’8″ x 16’6″)
Fitted with a range of wall and base units with contrasting worksurfaces, the kitchen includes an eye-level oven, gas hob and a stainless steel sink with drainer and mixer tap, all set against splashback tiling. There is plumbing for a washing machine and dishwasher, along with space for a fridge and a freezer. Additional features include tiled flooring, a double central heating radiator, and a built-in storage cupboard. Patio doors open directly onto the rear garden, creating a bright and functional space.
Landing
The staircase leads up to a bright first floor landing with a double glazed window, access to the loft, carpet flooring, and a central heating radiator. From here, doors open to both bedrooms and the bathroom.
Bedroom One
3.16m x 2.67m (10’4″ x 8’9″)
A well-proportioned double+ bedroom featuring wood flooring and fitted wardrobes offering excellent built-in storage. There are two double glazed windows with fitted shutters and a double central heating radiator.
Bedroom Two
2.44m x 3.28m (8’0″ x 10’9″)
A versatile second bedroom, currently arranged with a single bed and office setup, offers space to accommodate a double bed or to serve as the ideal study. The room features carpet flooring, a double glazed window, a double central heating radiator, and wardrobe included.
Bathroom
2.05m x 2.05m (6’8″ x 6’8″)
Recently refurbished, the bathroom features an L-shaped bath with shower over and a glazed shower screen, along with a modern vanity wash hand basin and WC. A double glazed privacy window, extractor fan, and laminate flooring complete the space.
External
To the rear is a low-maintenance graveled garden with an electric garage door providing valuable off-street parking, enjoying a south-west aspect. Additional on-street parking is available to the front of the property.
Services
We have been advised the property has mains electricity, mains water, gas central heating, and mains drainage.
Material Information
Prospective buyers should review the following details before making any purchase decisions. Broadband speed for the area can be determined by entering the postcode into the Broadband Speed Checker (“UK’s No. 1 Broadband Speed Test”). Mobile network coverage can be verified through the Ofcom website. These particulars are intended to offer a fair representation of the property; however, accuracy cannot be guaranteed, and they do not constitute a contractual offer. Buyers should conduct their own inspection of the property. None of the listed appliances or services have been tested by us, and we advise purchasers to seek a qualified professional to assess them before making any legal commitments.
Referral Fees
In line with the Estate Agents’ (Provision of Information) Regulations 1991 and the Consumer Protection from Unfair Trading Regulations 2008, we are required to disclose that this company may provide certain services to buyers and sellers, from which we may earn a referral fee upon completion. These services include conveyancing where we typically receive an average fee of £240.00 (incl VAT) and mortgages where we generally earn a commission averaging £120.00 (incl VAT).
About Us
Mace Estates is your local, independent, awardu2011winning estate and letting agent covering the full Tyne Valley including Hexham, Northumberland, Cumbria, and Tyne and Wear. We offer free, nou2011obligation sales valuations and rental valuations, along with expert advice on selling, buying, letting and property management. Whether you’re a homeowner looking to sell, a landlord seeking reliable tenants, or an investor exploring buyu2011tou2011let opportunities, our friendly team provides accurate valuations, 24/7 support and genuine local market knowledge. From family homes, flats, bungalows and rural cottages to park homes, commercial units and investment properties, we’re here to help you achieve the best results across Hexham and the wider region.
