Overview
- Updated On:
- February 23, 2026
- 1
- Bedrooms
- 1
- Bathrooms
Description
A well-presented two bedroom detached park home offered to Over 50s and occupies a central position in the sought-after Blenkinsopp Castle Home Park within Greenhead.
Features
- Detached Park Home
- Two Well-Proportioned Bedrooms
- Great Condition Throughout
- Resident Parking
- On Site Amenities
- Low-Maintenance Garden
- Central Location
- Council Tax: Band A
- Tenure: Leasehold
- EPC: Exempt
Property Description
Set within the grounds of the 14th century Blenkinsopp Castle, this well-presented two bedroom detached park home is offered to Over 50s and occupies a central position in the sought-after Blenkinsopp Castle Home Park within Greenhead, Brampton.
This Lissett Residential Pinewood Lodge offers modern, light and spacious living, overlooking one of the park’s greens, and briefly comprises: large living room with ample space for dining, a modern kitchen, two well-portioned bedrooms, and the shower room. Externally, the property benefits from a low-maintenance, surrounding garden.
It is worth noting there are new carpets throughout and the property has been freshly decorated, as well as the exterior which was recently painted in 2025. The central heating was changed in 2024 with a new Baxi boiler being installed and all new radiators – equipped with a ten year guarantee. All underneath supporting jacks have been changed to galvanised steel in 2024, and there is a fully-insulated loft plus under floor insulation.
The park offers dedicated resident parking and direct access to the Blenkinsopp Castle Inn, a long-established country inn with historic ties to the castle and local estate. The inn occupies a prominent position within the grounds and retains period character while providing food, drink, and regular community events that add to the site’s village-like atmosphere. The home itself occupies an idyllic setting with spectacular countryside views and is approximately three miles from the market town of Haltwhistle, with Hexham and Carlisle both reachable in under 30 minutes by car.
Viewings are highly recommended.
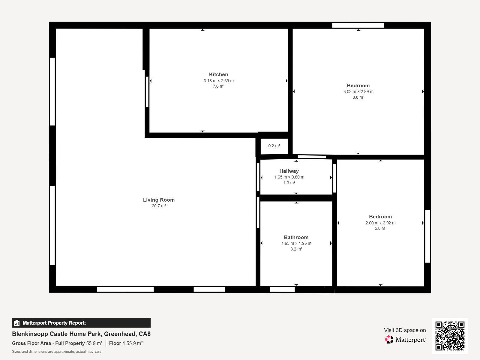
Living Room / Diner
5.91m x 4.59m (19’4″ x 15’0″)
The front uPVC external door with privacy glazing opens up into the bright, dual-aspect living room with three double-glazed windows (fitted with Hillary’s vertical and roller blinds), central heating radiator, ample space for dining, carpet flooring, and two three seater sofas which are included in the sale.
Kitchen
2.38m x 3.18m (7’9″ x 10’5″)
The spacious kitchen features a range of modern wall and floor units with contrasting worksurfaces, including: Bush oven with grill, a Beko 6-kilo washing machine, and a Hotpoint Ice Diamond four drawer upright freezer and fridge included in the sale. The kitchen benefits from splashback tiling, a stainless steel sink with drainer unit and mixer tap, and door to the external.
Inner Hall
1.65m x 0.8m (5’4″ x 2’7″)
The inner hall, fitted with storage cupboard and carpet flooring, provides access to the two bedrooms and the bathroom.
Bedroom One
3.02m x 2.89m (9’10” x 9’5″)
The principal bedroom, easily accommodating a double+ bed, is light and airy with matching drawer units and bedside tables included, as well as the bed frame; the bedroom features a double glazed window (with Harrison’s Venetian blind), a double central heating radiator, and carpet flooring.
Bedroom Two
2m x 2.92m (6’6″ x 9’6″)
The second bedroom, currently being used as a utility / office setup, features a full wall of hanging and storage space with further shelved walls. The room can easily be reinstated as the second bedroom if required, also featuring a central heating radiator, double glazed window (with Hillary’s Venetian blind), and laminate flooring.
Shower Room
1.65m x 1.95m (5’4″ x 6’4″)
The modern shower room features a low level WC, vanity wash hand basin, and walk-in shower with an electric Mira Vie shower unit plus extra hand rail; there is a double-glazed privacy window, and tile-effect flooring.
External
The property benefits from a low-maintenance, surrounding garden where one side is gravelled with two Keter garden storage boxes included within the sale. There is a lawned garden with a lovely paved patio area for seating, as well as a large Keter Artisan shed measuring 11ft by 7ft newly fitted in 2024 with electric power points.
Services
We have been advised the property has mains electricity, mains water, LPG central heating, and mains drainage.
Charges
We have been informed the monthly pitch rent in £175.79, the yearly council tax is £1,624.63, and the yearly water rates are £172.19.
Material Information
Prospective buyers should review the following details before making any purchase decisions. Broadband speed for the area can be determined by entering the postcode into the Broadband Speed Checker (“UK’s No. 1 Broadband Speed Test”). Mobile network coverage can be verified through the Ofcom website. These particulars are intended to offer a fair representation of the property; however, accuracy cannot be guaranteed, and they do not constitute a contractual offer. Buyers should conduct their own inspection of the property. None of the listed appliances or services have been tested by us, and we advise purchasers to seek a qualified professional to assess them before making any legal commitments.
Referral Fees
In line with the Estate Agents’ (Provision of Information) Regulations 1991 and the Consumer Protection from Unfair Trading Regulations 2008, we are required to disclose that this company may provide certain services to buyers and sellers, from which we may earn a referral fee upon completion. These services include conveyancing where we typically receive an average fee of £240.00 (incl VAT) and mortgages where we generally earn a commission averaging £120.00 (incl VAT).
About Us
Mace Estates is your local, independent, award‑winning estate and letting agent covering the full Tyne Valley including Hexham, Northumberland, Cumbria, and Tyne and Wear. We offer free, no‑obligation sales valuations and rental valuations, along with expert advice on selling, buying, letting and property management. Whether you’re a homeowner looking to sell, a landlord seeking reliable tenants, or an investor exploring buy‑to‑let opportunities, our friendly team provides accurate valuations, 24/7 support and genuine local market knowledge. From family homes, flats, bungalows and rural cottages to park homes, commercial units and investment properties, we’re here to help you achieve the best results across Hexham and the wider region.



