Low Mill House Station Road Alston CA9 3HZ
Description
A two storey semi-detached house within Alston with large living space and off-street parking available for rent.
Features
- Semi-Detached House
- Two Double Bedrooms
- Generous Living Space
- Off-Street Parking
- Wrap-Around Garden
- Furnished or Unfurnished
- Village Location
- Available From: 1st November 2025
- EPC: Band C
- Council Tax: Band A
Property Description
A charming and well-presented semi-detached house located in the historic market town of Alston, available either furnished or unfurnished to suit individual needs. The property offers spacious and versatile accommodation, making it an ideal home for couples, small families, or those seeking a peaceful retreat in the North Pennines.
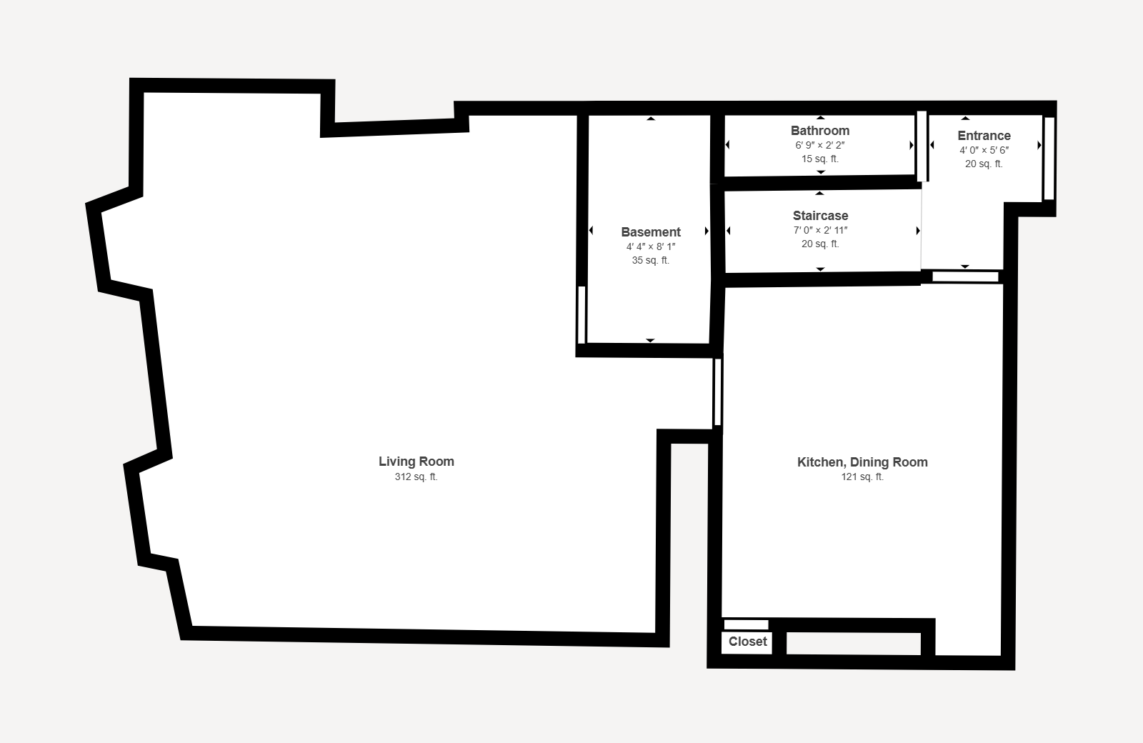
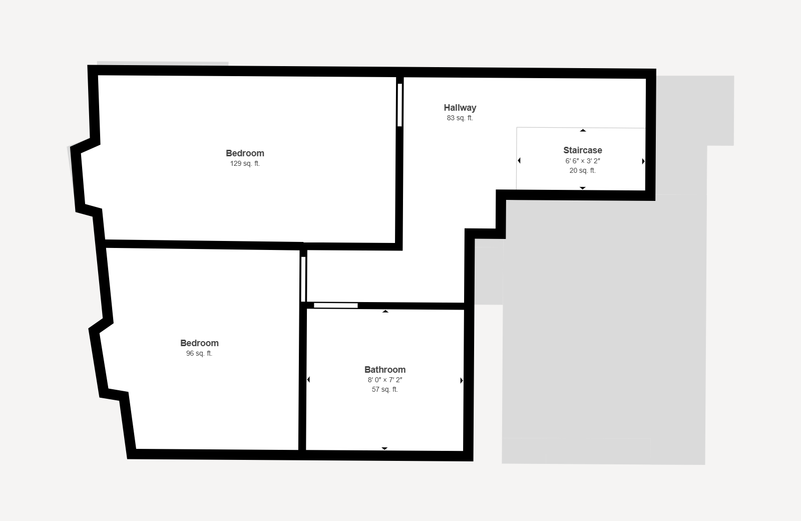
The ground floor features a generous living room with ample space for dining, a modern-fitted kitchen complete with white goods, and the convenience of a downstairs WC. To the first floor, there are two well-proportioned double bedrooms and the family bathroom. Externally, the property benefits from off-street parking, a rare advantage in this central location.
Viewings come highly recommended.
Entrance Hall
1.22m x 1.68m (4’0″ x 5’6″)
The entrance leads to the downstairs WC, kitchen, and carpeted staircase to the upper landing. There is wood effect flooring, panelled and painted walls, and a radiator.
Kitchen/Diner
4.04m x 2.95m (13’3″ x 9’8″)
Fitted with floor units and worktops, incorporating a stainless steel sink, oven with electric hob and tiled splashback, fridge freezer, washing machine, dishwasher, and microwave. A wall-mounted boiler is present. The room has wood-effect flooring, painted walls, a storage cupboard, and two double glazed windows.
Living Room
5.82m x 5.59m (19’1″ x 18’4″)
Accessed via the kitchen, the living room features carpet flooring, painted walls, a chimney breast with mantlepiece and covered fireplace, two radiators, and two double glazed windows.
Downstairs WC
2.06m x 0.66m (6’9″ x 2’2″)
The ground floor WC includes a low level WC, wash hand basin, radiator, wood-effect flooring, painted walls, and a double glazed window.
Bedroom One
4.55m x 2.54m (14’11” x 8’4″)
The first bedroom is carpeted and has painted walls, a double bed, radiator, and a double glazed window.
Bedroom Two
3.1m x 2.95m (10’2″ x 9’8″)
The second bedroom features carpet flooring, painted walls, a radiator, and a double glazed window. It is furnished with a single bed and has space to accommodate a double or two singles.
Bathroom
2.44m x 2.18m (8’0″ x 7’2″)
The bathroom is equipped with a standalone shower, bath, low level WC, handwash basin, and radiator, with wood-effect flooring.
External
There is a wrap around garden to the front and side of the property with off-street parking for two cars.
Services
We have been advised the property has mains electricity, mains gas, mains water, and mains drainage. Internet has been installed and is included in the rent.
Holding Deposit
To secure a rental property while references are undertaken, we require a holding deposit equivalent to one week’s rent. This deposit reserves the property for up to 15 calendar days (unless agreed otherwise), is added to the full tenancy deposit (five weeks total) upon successful completion of tenancy documentation, and may be withheld if an applicant (or guarantor) withdraws, fails a Right-to-Rent check, provides false or misleading information, or does not sign the tenancy agreement within the 15-day period.
Referencing & Affordability Checks
All applicants aged 18 or over must undergo referencing, which includes: credit check – to ensure there is no adverse credit history (e.g. CCJs), affordability Assessment – applicants must earn at least 30x the monthly rent in gross annual basic income where income includes salary, pensions, or benefits (excluding commission / bonuses), employment verification confirming start date, salary, and that the role is permanent (self employment requires an accountant’s reference and should have accounts for a minimum of two years), landlord reference for current renters to confirm adherence to lease terms and responsible property care, and Right-to-Rent checks to validate each applicant’s legal eligibility to rent in the UK.
Material Information
Prospective tenants should review the following details before making any decisions. The Broadband is included with Fibrus, further details can be provided. Mobile network coverage can be verified through the Ofcom website. These particulars are intended to offer a fair representation of the property; however, accuracy cannot be guaranteed, and they do not constitute a contractual offer. The particulars of this property are provided as general guidance for the tenant’s contract. The Agent has not tested any apparatus, equipment, fixtures, fittings, or services and therefore cannot confirm whether they are operational or suitable for their intended use. The tenant should not regard these details as statements of fact but must verify their accuracy through inspection or other means. Items shown in photographs are not included unless specifically mentioned in the particulars. Measurements have been taken using the Matterport mapping system and may be subject to a margin of error. For further information, please refer to the Consumer Protection from Unfair Trading.
Take a Virtual Tour
Property Details
Floor Plans


